Descripción
Válvula globo a pistón Acero al carbono conexión bridada
Principales ventajas:
Las válvulas globo a pistón no poseen asiento que pueda ser destruido por el vapor u otro medio de paso. El cierre son un pistón de acero inoxidable y anillos de grafito.
Son aplicables prácticamente en todos los medios y muy especialmente en líneas de FLUIDO TERMICO.
Las válvulas convencionales de obturador y asiento metálicos no han logrado asegurar un cierre hermético.
Una de las cualidades de la válvula a pistón es que no existe posibilidad en el momento de cierre de quedar partícula alguna entre pistón y anillos .
Fácil recambio de los anillos de cierre y prensa
Cuando no se puedan reajustar los anillos y tengan que ser remplazados, puede realizarse en forma rápida sin necesidad de desmontar. Los anillos se recambian en unos pocos minutos y la válvula queda inmediatamente en servicio ahorrando largas paradas de planta.
Nunca una válvula a pistón será desechada como las válvulas convencionales, ya que las mismas son TOTALMENTE REPARABLES. Contamos con REPUESTOS DE TODAS SUS PARTES.
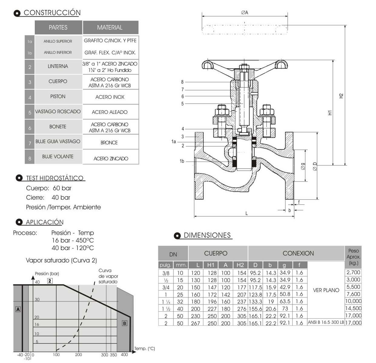
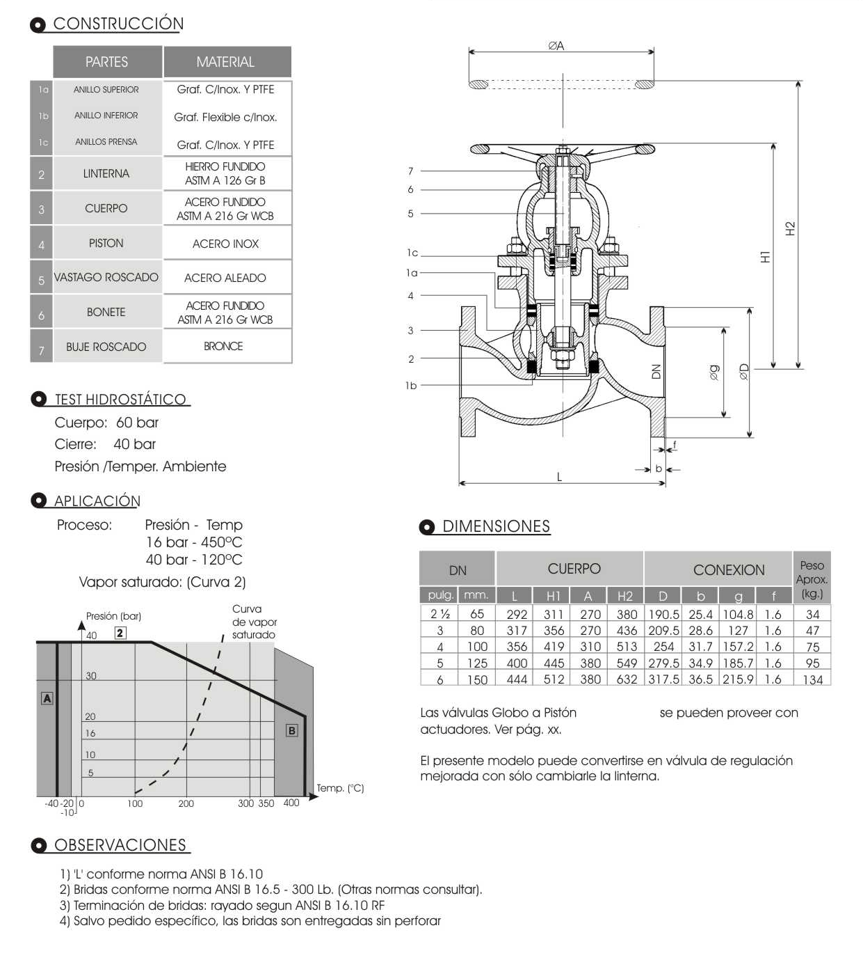
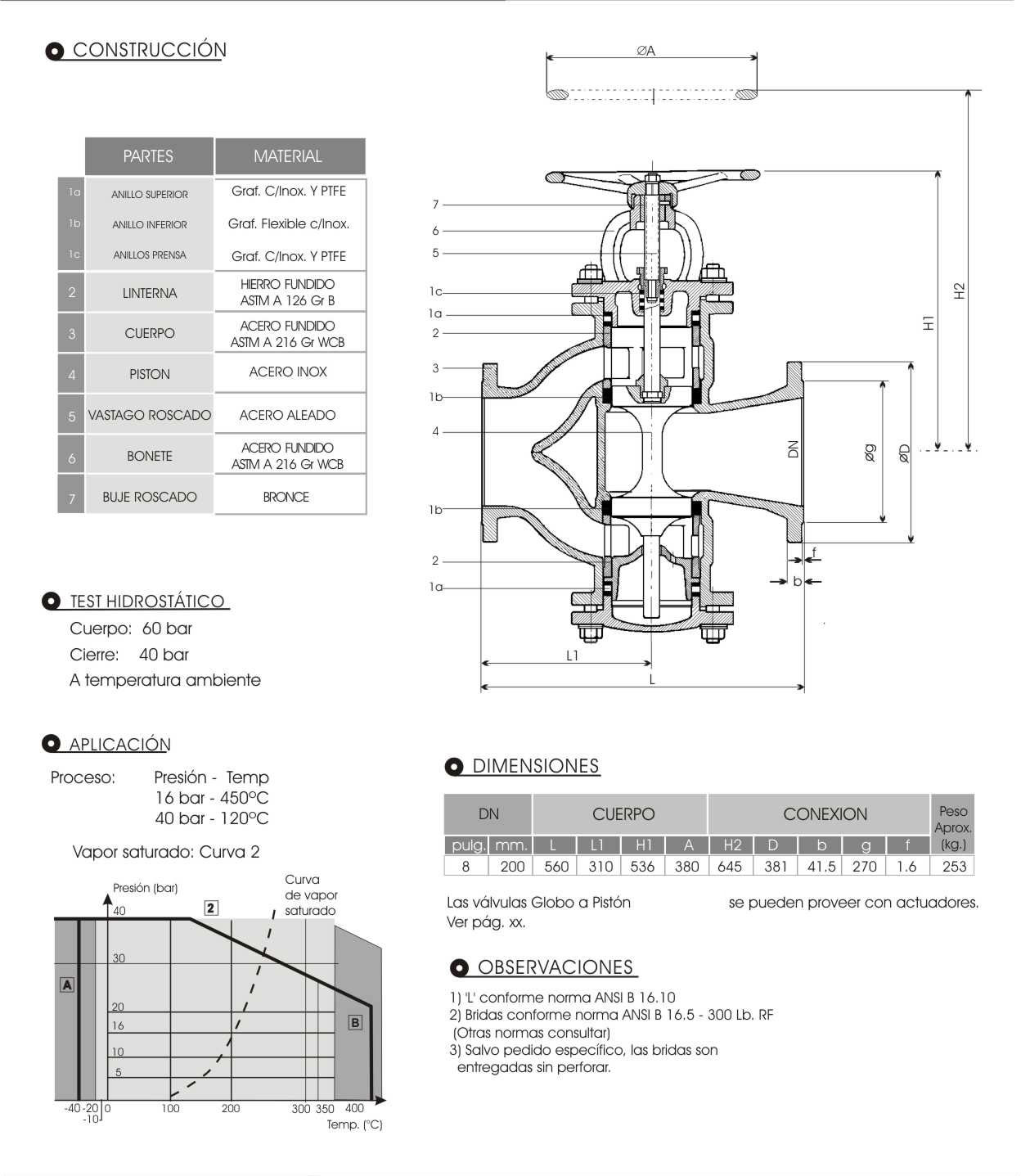
Válvula globo a pistón Acero al carbono conexión bridada – Especificaciones técnica por medidas
3/8″ a 2″

2 1/2″ a 6″

8″

Te invitamos a visitar nuestro catalogo de válvulas globo
